Gli oggetti ed i mobili che ho disegnato e realizzato nei primi anni del 2000, sono concepiti come delle piccole Architetture domestiche. Ho progettato mobili ed oggetti come si progetta un fabbricato. Avrei potuto dare a questi manufatti il titolo di oggetti di “Design”, ma il termine non mi appartiene. Le mie piccole Architetture domestiche ed imperfette, sono costruite dagli Artigiani, dai Fabbri e dai Falegnami. Non mi interessa che Essi vengano duplicati e replicati. Preferisco che restino unici e che il tempo e l’uso li distruggano.
Né racconto le loro storie.
SLEEP ON A GRATE | anno MM
Sleep on a Grate è un letto. I suoi confini concettuali spaziano tra la riflessione zen, e la cultura bio – naturale del sonno; a metà tra “alcova di piacere” e “grata orizzontale di sofferenza, piano di tortura” (ovviamente il concetto è puramente metafisico). Di dimensioni ragguardevoli (86,6 pollici x 94,5 pollici), è studiato e progettato per essere inserito in ampi spazi in posizione centrale all’ambiente, anche se non disdegna spazi più ragguardevoli e contenuti. Si compone di 2 parti: “il duro” costituito da un “orditura” a maglia relativamente fitta realizzata da listelli in essenza di rovere naturale (dimensioni 1,97 pollici x 1,18 pollici), tinteggiati con vernice ad acqua e tagliati di lunghezza diversa, (il lato destro é inclinato per rendere meno banale e “nervoso” l’oggetto) fissati su un telaio in profilati a sezioni rettangolare di acciaio inox saldati; “il morbido” costituito, a piacere, da un materasso in lattice di altezza contenuta, oppure un futon, Il morbido sporge oltre il limite del duro costituito dai listelli fungendo da seduta e da appoggio per oggetti. Esso può correre per la casa ed essere trasportato ed orientato a piacere nello spazio grazie a 4 ruote girevoli a 360°, montate al di sotto del telaio.
- Collage, anno 2000 (foto DL)
- Il letto in appartamento di città – con pavimento di piastrelle in graniglia – anno 2000 (Colage di fotografie DL)
- Pianta (scala 1:10)
- Modello 3D (anno 2000)
- Modello 3D (anno 2000)
- Modello 3D (anno 2000)
- Modello 3D (anno 2000)
- Modello 3D (anno 2000)
- Modello 3D (anno 2000)
TIVOLI | anno MMI
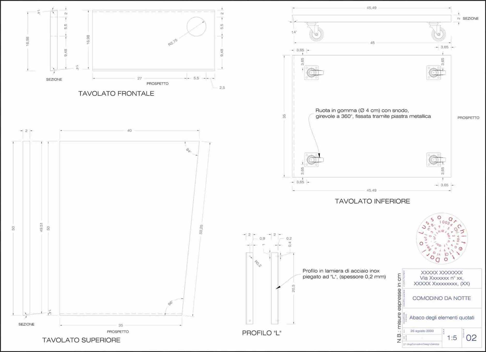
Tivoli è un comodino da zona notte. Un oggetto abbastanza diverso da quelli consueti, da affiancare ad un letto altrettanto diverso dagli schemi comuni. Di altezza contenuta (altezza da terra 22 cm) presenta due piani di appoggio (uno rettangolare di dimensioni 50 cm x 30 cm, posto a livello delle ruote, l’altro di forma trapezia funzionante da piano di appoggio posto a livello del letto). La sezione dell’oggetto è una “C” dove la superficie verticale (forata da un vistoso buco), rispetto a quelle orizzontali non sono perpendicolari ma a circa 75°. L’oggetto è realizzato in legno listellare di rovere verniciato ad acqua tinta naturale ed è munito di 4 ruote a snodo girevole a 360°. L’immaginario di riferimento e la citazione vogliono ricordare ed associare Tivoli ad un carrello utilizzato nelle miniere per il trasporto dei minerali.
- Vista laterale (foto DL)
- Vista laterale (foto DL)
- Vista laterale (foto DL)
- Vista laterale (foto DL)
- Vista laterale (foto DL)
- Vista dall’alto (foto DL)
- Pianta dall’alto (foto DL)
- Il comodino in appartamento di città – con pavimento di piastrelle in graniglia – anno 2001 (Collage di foto DL)
- Disegno delle facciate
- Disegno costruttivo
PORTO | anno MMI
Porto è un tavolino basso da soggiorno realizzato in legno massello di mogano tinteggiato con vernice a lucido, e antine in plexiglass azzurrate, montato su 10 piccole ruote girevoli. La forma è molto semplice: 2 superfici orizzontali e 2 verticali, unite definire un parallelepipedo, vuoto al suo interno. La superficie orizzontale sfugge oltre il limite di quella verticale definendo un vistoso sbalzo di appoggio. I prospetti sono giocati con vistosi buchi rotondi, e tagli orizzontali. Il contrasto tra l’azzurro delle antine in plexiglass e il colore scuro del legno creano interessanti riflessi e giochi di luce. L’interno è un’enorme stanza illuminata.
- Vista laterale (foto DL)
- Vista laterale (foto DL)
- Vista laterale (foto DL)
- Vista laterale (foto DL)
- Vista laterale (foto DL)
- Vista laterale (foto DL)
- Vista interno (foto DL)
- Vista dell’interno dal buco (foto DL)
- Vista dell’interno dal buco (foto DL)
- Vista al rovescio (foto DL)
- Vista in piedi (foto DL)
- Disegno costruttivo
- Vista lati corti
- Vista lati lunghi
STRETCH | anno MMII
Stretch è un carrello trasportabile. Dimensioni: ingombro massimo 60 cm x 60 cm; altezza 110 cm. Materiali: telaio strutturale realizzato in profili di acciao inox-satinato (montanti con sezioni a “L”, tagliati con varie dimensioni e angolature, e crociere con sezioni cave rettangolari 2 cm x 1 cm). 5 ripiani in legno incollato a tre strati in mogano, tinteggiato con vernice a 2 componenti, effetto cera, spessore 1,5 cm. 2 pannelli in plexiglass trasparente, spessore 3 mm, color verde acido fosforescente. Funzioni: un semplice carrello per deporre oggetti, e quant’altro occorre, da trasportare per le stanze ed esporre per rendere più vivaci e colorati gli angoli della propria casa. Forma: la complessità della forma è dovuta al montante che viene inclinato; è’ come se uno dei lati superiori fosse “strecciato”, come un chewingum, nella direzione esterna, nel piano a 45°, di circa 15 cm; pertanto in tutti i livelli sottostanti, i ripiani e le crociere ne seguono l’andamento dilatandosi e allungandosi; la “destrutturazione” che ne deriva fa apparire l’oggetto instabile, in una situazione di equilibrio precario, quasi crollasse; questo progetto vuole essere una provocazione, una “banalizzazione” di un oggetto che costruttivamente banale non è.
- Facciata all’aperto (foto DL)
- Facciata all’aperto (foto DL)
- Facciata all’aperto (foto DL)
- Facciata all’aperto (foto DL)
- Ambiente domestico, anno 2004 (foto DL)
- Ambiente domestico, anno 2004 (foto DL)
- Ambiente domestico, anno 2004 (foto DL)
- Dettaglio dello spigolo (foto DL)
- Disegno dei livelli in pianta in scala 1:10
- Disegno del prospetto in scala 1:10
- Disegno del prospetto in scala 1:10
- Disegno del prospetto in scala 1:10
- Disegno del prospetto in scala 1:10
WORK | anno MMII
Work assolve la funzione di una postazione da lavoro, per personal computer “assemblato”, adatta ad ambienti domestici. Dimensioni: piano di lavoro: larghezza 102,00 cm, profondità 61,00 cm, altezza da terra 74,50 cm; contenitore “porta – case”: larghezza 26,00 cm, profondità 74,00 cm e 66,50 cm, altezza 66,50 cm. Materiali e componenti: 2,737 mq di lamierino di alluminio (lastra per l’assemblaggio del “case”, lastra per l’assemblaggio del piano di lavoro / piede sinistro e lastra per l’assemblaggio della barra poggiapiedi), spessore 4,00 mm; n° 1 lastra di vetro (superficie 0,622 mq), spessore 1,00 cm; n° 4 bulloni, diametro 2,00 cm e n° 4 dadi esagonali, diametro esterno 3,50 cm; n° 6 ruote da “ferramenta”, girevoli a 360°, diametro 5 cm, di cui 2 munite di freni; n° 2 cerniere da “ferramenta” in inox, con piastre da 5,00 cm x 1,70 cm; n° 1 nottolino di chiusura da “ferramenta” in inox; n° 30 viti, diametro 2,00 mm e n 24 dadi esagonali, diametro esterno 4,00 mm; n° 4 ventose di plastica trasparente, diametro 2,00 cm. Forma e Provocazione: il piano di lavoro, piegandosi di + 295°, diventa “elemento di bordo”, lato destro, e poi “piede”, su cui vengono avvitate le 2 ruote, girevoli a 360°; l’elemento scatola – contenitore del “case”, diventa parte del piano di lavoro, nonché “elemento di bordo”, lato sinistro, sulla cui base vengono avvitate le 4 ruote girevoli a 360°; linea e forma sono “gratuite” e derivano esclusivamente dal “gesto” volto ad ottenere un risultato estetico fuori dalle caratteristiche comuni; tutte le superficie sono “forate” da innumerevoli “buchi” dalla forma circolare ed ellittica, disposti e collocati “sull’involucro” in modo, solo, “apparentemente casuale”, ma in realtà calcolati e determinati in funzione di “delicati equilibri pieno – vuoto”; per utilizzatori “preparati”. Numeri e Curiosità: n° 136 fori circolari dal diametro di 3,00 cm; n° 24 fori circolari dal diametro di 1,5 cm; n° 28 fori circolari dal diametro di 0,5 cm; n° 2 fori circolari dal diametro di 6,00 cm; n° 1 foro circolare dal diametro di 5,00 cm; n° 9 fori ellittici, dai diametri diversi; n° 9 piegature con macchina piegatrice a controllo numerico; n° 7 saldature lineari con elettrodi di alluminio; n° 2 barattoli da 3 kg di smalto lucido per alluminio; più di 90 ore di lavoro di officina del “bravo” Dario Tallia.
- Vista laterale all’aperto (foto DL)
- Vista laterale all’aperto (foto DL)
- Vista laterale all’aperto (foto DL)
- Prospetto frontale all’aperto (foto DL)
- Vista dall’alto (foto DL)
- Vista a volo d’uccello (foto DL)
- Dettaglio (foto DL)
- Dettaglio (foto DL)
- Dettaglio (foto DL)
- Dettaglio (foto DL)
- Dettaglio (foto DL)
- Dettaglio dell’interno del vano porta computer (foto DL)
- Dettaglio dal buco rotondo (foto DL)
- Dettaglio dall’ellisse (foto DL)
- Ambiente domestico (foto DL)
- Dettaglio dell’interno del vano porta computer (foto DL)
- Disegno dello sviluppo del tavolo porta computer
- Disegno dello sviluppo del vano porta computer
WOZOCO | anno MMIII
WoZoCo doveva essere un mobile trasportabile su ruote. All’occorrenza le ruote potevano essere tolte e il mobile ancorato con dei tasselli alla parete del muro posteriore. Il mobile era un misto di cassettiera e vani per oggetti: 3 cassetti, 3 ripiani vuoti e 2 vani ognuno dei quali munito di anta a ribalta, sono appesi a sbalzo ad un piano strutturale verticale posteriore. I 2 vani con ante a ribalta servivano come spazi per ospitare una stampante A3 ed uno scanner. Il titolo dell’oggetto vuole ricordare quella famosa Architettura olandese munita di vertiginosi sbalzi verso il vuoto, realizzata alla fine degli anni 90 ad Amsterdam dagli MVRDV. Il mobile andò distrutto durante un trasloco.
- WoZoCo + Work in appartamento di città con piasterelle di graniglia – anno 2003 (foto DL)
- Disegno dei 4 prospetti
- Disegno costruttivo quotato delle sezioni
- Disegno costruttivo quotato dei prospetti
- Complesso residenziale WoZoCo, Amsterdam-Osdorp, 1997 – MVRDV (foto dalla rete)




































































